




富山市にお住まいのH様。
暮らしを上質に変えるマンションリノベーションが完成いたしました。
富山の夜景と大きな空を眺める、至福の時間を過ごせる住まいです。
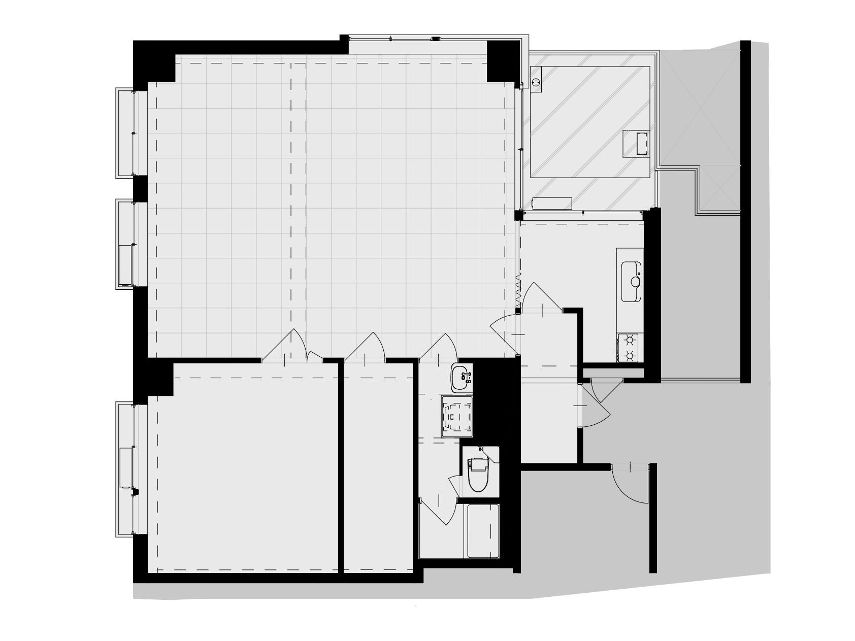
壁を極力なくし、
LDKから寝室までをゆるやかにつなげた、
ワンルームのような間取り。
最上階からの眺望と大きな窓が、
空間に開放感と非日常をもたらします。
黒を基調としたインテリアと相まって、
まるでホテルのように上質な時間を過ごせる住まいです。
大きな窓から広がる、
最上階ならではの開放的な眺望。
昼は空の広がりや自然光をたっぷりと取り込み、
室内を明るく演出します。
夜は街の灯りが美しく映え、
日常の中で非日常を感じられる、
贅沢なロケーションです。
キッチン・建具・クロスを黒〜ダークグレーで統一し、
空間全体に一体感を持たせました。
素材の質感や照明計画にもこだわり、
落ち着きと上質さを感じられる空間に。
日常でありながら、
ホテルのような特別感を味わえるインテリアに仕上げています。
LDKと寝室のどちらからもアクセスしやすい位置に、水回りを配置。
移動距離を最小限に抑えることで、
日々の生活動線をスムーズにしています。
使いやすさに配慮した配置計画により、
快適でストレスの少ない暮らしを実現しました。
ユニテではリノベーションが体感できるリノベージョンモデルハウスを公開中!