




今回のお施主様はN様。
お祖父様から受け継いだ、耐久性の高いコンクリート造の住まい。
暮らしに合わせて間取り変更を検討しましたが、構造が特殊であることを理由に複数社にお断りされてしまいます。
「新築するしかないか」と半ばあきらめていたところに、コンクリート造の住まいを改装した実績のあるユニテとご縁をいただきました。
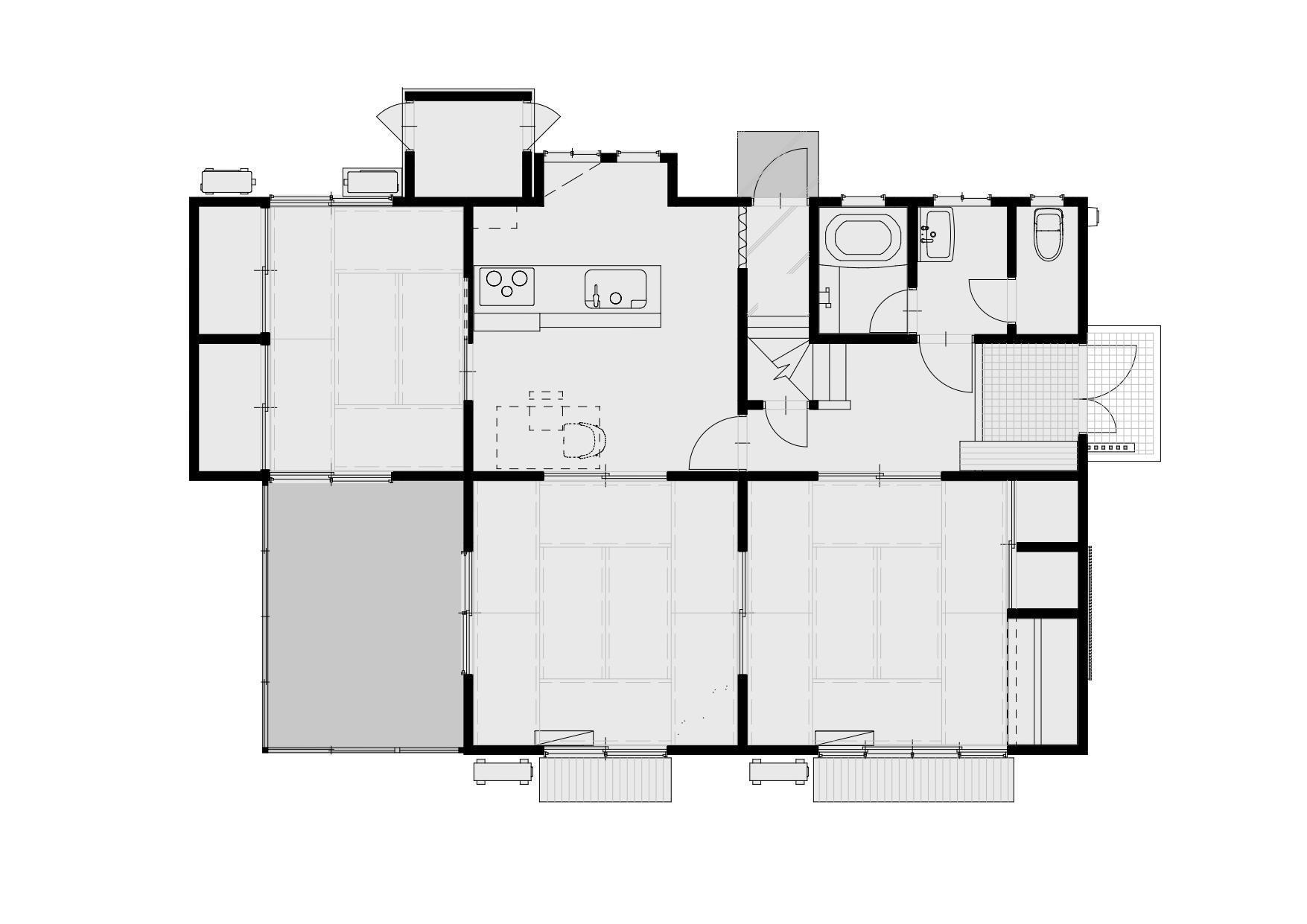
住まいの東面には18帖のLDKを設けました。
”東向きリビング”は西日が入らないため、午後から夕方にかけて眩しさや暑さも少なく、熱ごもりも少ないので快適に過ごせます。
奥まったスペースにも光が届き、住まい全体が明るい雰囲気になります。
隣接したサンルームも、洗濯物の乾きが一段と早く大活躍です。
愛犬とゆっくり過ごすことの出来る、あたたかな空間が完成しました。
元々の住まいで特に困っていたのが、収納スペースの少なさ。
玄関横にパントリーを設けることで、迷子だった物たちに居場所を与えます。
"家で使う"にも"外で使う"にも便利な位置取りです。
玄関先には、帰ってきてすぐに衣類を掛けるパイプを設置し、
床から浮かすように設置するフロートタイプの玄関収納を設けることで、床掃除を楽にできるよう配慮しました。
元々の住まいは車庫が1台分しかなく、近くに駐車場を借りていました。
リノベーションを機に敷地内に2台分の駐車スペースを確保するため、車庫を解体。
雨の日も雪の日も、車からサッと住まいへ入れるようになりました。
ユニテではリノベーションが体感できるリノベージョンモデルハウスを公開中!